Das Objekt
Bereits beim ersten Blick auf die Immobilie wird deutlich, dass es sich um ein klassisches Einfamilien-Reihenhaus in gewachsener Wohnlage handelt. Die Architektur aus der Bauzeit der 1980er-Jahre fügt sich stimmig in die umgebende Bebauung ein und wird von einer gepflegten Gartenanlage begleitet. Der Vorgarten ist mit Sträuchern, Bäumen und verschiedenen Pflanzen gestaltet und schafft eine
gewisse Distanz zur Straße. Dadurch entsteht bereits beim Betreten des Grundstücks ein ruhiger und grüner Eindruck.
Der Zugang zum Haus erfolgt über einen kleinen Weg durch den begrünten Vorgarten, der zum leicht erhöht gelegenen Hauseingang führt. Einige Stufen leiten zur Eingangstür und schaffen einen angenehmen Übergang vom Außenbereich in das Haus. Beim Betreten empfängt ein freundlicher Eingangsbereich mit Platz für Garderobe und alltägliche Dinge. Von hier aus erschließt sich das Erdgeschoss mit einer klaren und praktischen Raumaufteilung, die ein angenehmes und gut strukturiertes Wohngefühl vermittelt.
Für mehr Bilder und eine ausführliche Beschreibung fordert gern unser Exposé an.
Die Lage
Berlin-Biesdorf ist ein ruhiger und grüner Ortsteil im Bezirk Marzahn-Hellersdorf im Osten der Hauptstadt. Die Wohnlage ist geprägt von einer entspannten, nahezu kleinstädtischen Atmosphäre und verbindet diese mit den Vorteilen des Lebens in einer Metropole. Vor allem Ein- und Zweifamilienhäuser, aber auch stilvolle Villen und Landhäuser prägen das gewachsene Wohnumfeld.
Ein besonderer Vorteil des Stadtteils ist die Nähe zur Natur. Zahlreiche Grünflächen, Parks und Spazierwege bieten vielfältige Möglichkeiten zur Erholung im Alltag. Besonders der Schlosspark Biesdorf mit seinem historischen Schloss und den weitläufigen Grünanlagen lädt zu Spaziergängen, sportlichen Aktivitäten oder entspannten Stunden im Freien ein. Auch das nahegelegene Wuhletal mit seinen Rad- und Wanderwegen sowie der Biesdorfer Baggersee bieten attraktive Naherholungsmöglichkeiten.
Trotz der ruhigen Wohnlage ist Biesdorf gut an das Berliner Verkehrsnetz angebunden. Über die U-Bahnlinie U5 sowie mehrere Buslinien gelangt man schnell in andere Stadtteile und in die Innenstadt. Gleichzeitig sorgen Einkaufsmöglichkeiten, Ärzte, Schulen und Kindertagesstätten im näheren Umfeld für eine komfortable Infrastruktur im Alltag.
Insgesamt verbindet Berlin-Biesdorf eine grüne und ruhige Wohnatmosphäre mit einer guten Anbindung und einer familienfreundlichen Umgebung. Die Kombination aus gewachsener Wohnstruktur, viel Natur und einer soliden Infrastruktur macht den Stadtteil zu einem attraktiven Wohnort für Menschen, die in Berlin leben und zugleich ein ruhiges Wohnumfeld schätzen.
Die genaue Lage erfahren Sie auf Anfrage.
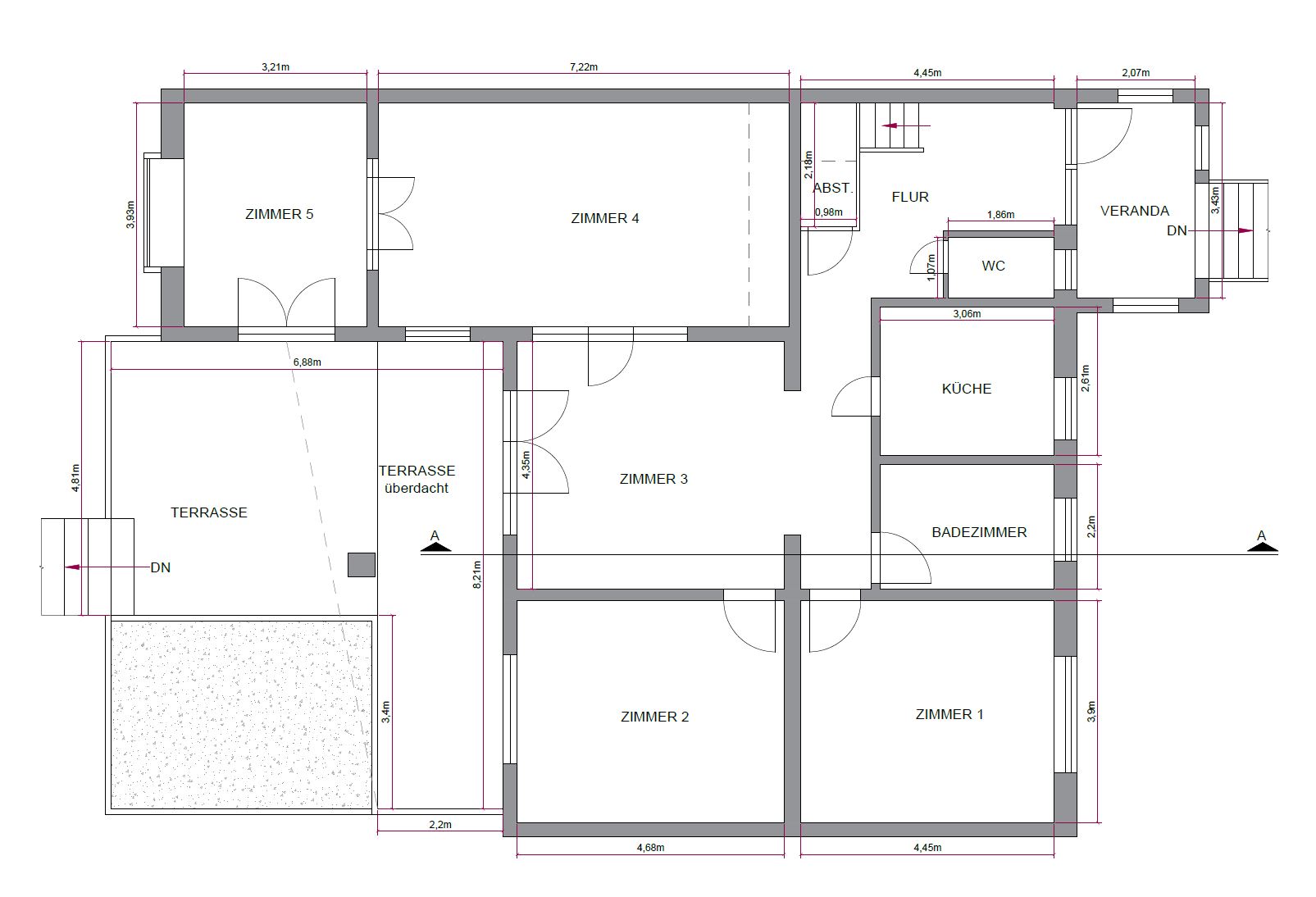
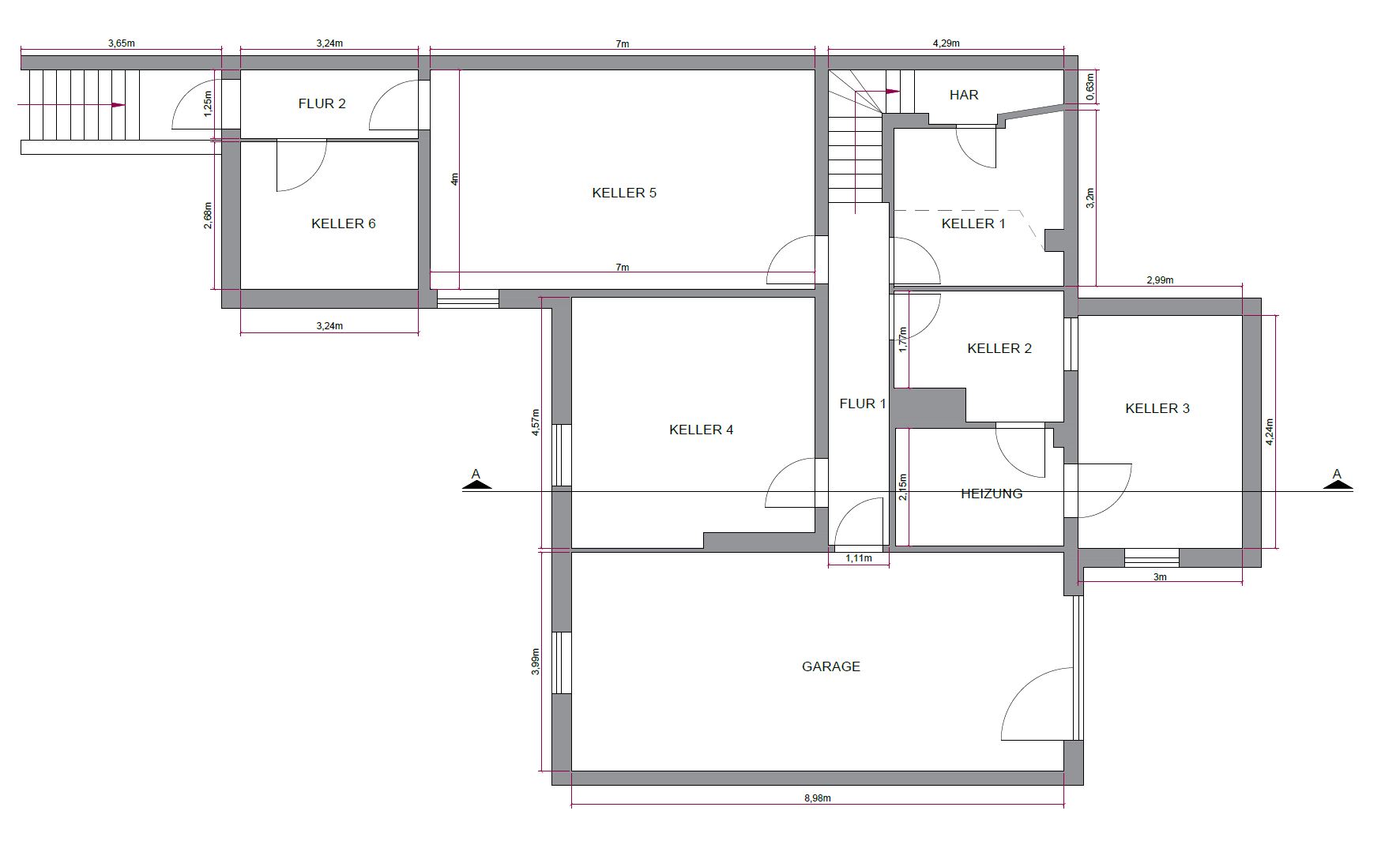
Der Grundriss


MAKELBAR | Genossenschaft für Wohnimmobilien übernimmt keine Gewähr.
Unser Immobilienvideo zum Objekt
Die Fakten

Fordern Sie unser ausführliches Exposé an.
Sie möchten ebenfalls Ihre Immobilie verkaufen?
Nutzen Sie unsere marktgerechte, fachkundige Bewertung und den professionellen Vertrieb.
Lassen Sie sich von unserem Team beraten.
+49 (0)30 857 392 78
office@makelbar.de
Unsere Servicezeiten:
Montag bis Sonntag
08:00 bis 23:00 Uhr











